
Програмный продукт продукт Eplan является основным средством проектирования электрических схем. В материале ниже будет представлен примерная структура построения проекта.
Содержит общую информацию о схете, такую как фирма производитель, наименование, номер, ответственные лица и другое. Ключевая особенность наличе QR кода, который может содержать любую информацию.
Класическое содержание, перечисляет страницы проекта плюс оброботчик и дату изменения. Может быть представленна и в другом виде.
Информация о применяемых напряжениях проекта, а также цветовая маркировка и сечения проводов.
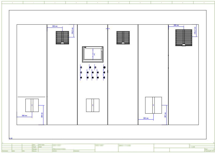
Размещение элементов схемы как внутри так и снаружи шкафов управления, с указанием ключевых размеров.
Собственно электрическая схема. Может быть построенна как на базе Российских так и иностранных стандартах.
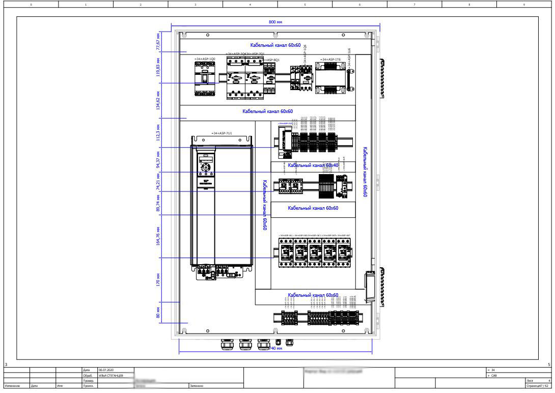
Нужна для визуального восприятия пространства шкафа управления. На базе 3D объекта создается компановка шкафа. Так же нужна для выставления необходимых звзорорв между элементами схемы для лучшей вентиляции. Плюс есть возможность вычислить размер кабель каналов в зависимости от сечения проводов проложенных в них.
Выше приведены фрагменты типовых проектов. Состав, структура, офрмление и другие состовляющие проекта оговариваются с заказчиком индивидуально.